Construction Drawings, architectural drawings (the outside) and the interior design drawings
Project Type
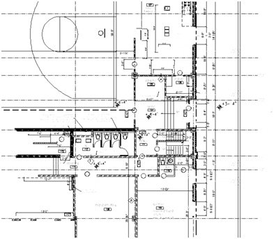
Construction Drawing Design Side entrance / Lecture hall/ Youth center
Location
6209 11TH AVENUE, BROOKLYN, NY
Size
Cellar, 1st, 2nd, 3rd, and 4th areas’ are 49,086 sf
My responsibility:
Drew all constructed drawing in AutoCAD such as floor plan, reflected ceiling,elevations, sections, door schedule, and all the details. On the other side,I designed the plan space of the side entrance, lecture hall, and youth center.My role was furnishing the space with respect of the design principles, and focus on the elements such as windows, materials, walls, and floors.
Project Description:
The basic idea was to keep and respect the principles of the planning space which made the users more comfortable with paths, seats, and movement. Created a beauty, cool, and functional spaces which helped customers feel and use the space in the best way.Finished some special area like the side entrance in 3D rendering, and picked up the materials such as: wallpaper, painting, tiles, and wood moldings.
I designed a stained glass window as a freehand sketch in the beginning to match this element with the style which was picked at the hall.There was a large mosaic banner which belongs to plants molding and historic Style, so I inspired the idea to match the banner and all the other elements in the hall. The design has a strong conceptbased on all the principal design such as symmetric, harmonic, and balance
Side Entrance
I designed the side entrance which had a big issue based on different axes for the main doors, and there was no symmetric in the space which pushed me to pick main wall to draw the attention, and convert it to the main issue in the space to treat the hall space. I picked up the wall paper, the wood molding and the coloring, but floor materials were chosen from the beginning. I presented the design in AutoCAD and 3D Max rendering.
Get in touch
Got any inquiries?
What’s your vision and when can we meet? Schedule your consultation by calling or completing the form. See you soon!